Description de l'offre
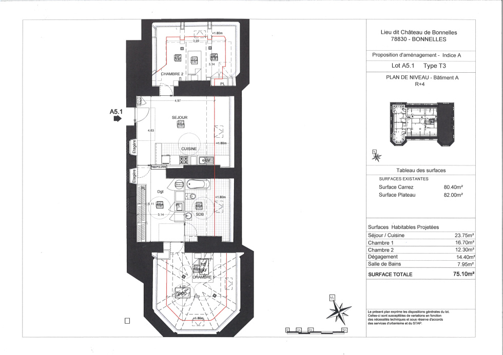
L'agence ALPHA IMMO vous propose à la location, au Château de BONNELLES, dans résidence de haut de standing, cet appartement de 78,85 m2.Ce 3 pièces au dernier étage offre une entrée sur un séjour de 23,75m2, ouvert sur cuisine aménagée et équipée (plaque, hotte, four, réfrigérateur, machine à laver et lave-vaisselle), une salle de bains avec WC, et deux chambres de 13 et 16m2. Vous pourrez également profiter de 2 stationnements privatifs dans l'enceinte du parc. Loyer : 1172,00€ (dont 158,00€ de provisions de charges pour l'eau froide - l'entretien et l'éclairage des parties communes - l'entretien des espaces verts) - Dépôt de garantie : 1014,00€ - Honoraires locataire : 867,35€ dont 236,55€ pour l'état des lieux - Libre de suite!

